Allwood solvalla 172 sqf studio cabin kit. Live large with studio shed.
The resulting guest suite and home office function separately as highly flexible bonus rooms.
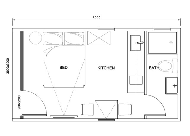
Backyard prefab guest house with bathroom. We have some great ideas of converting your shed into a guest house for the holidays to share with you. From modern and prefab to classic cottage and. Medcottages are pre fabricated and designed to be installed in the backyard behind the main home zoning laws permitting of course.
Prefab house prefab house. Need a little more room. Like the primary.
Continue to 18 of 22 below. Whether youre upgrading to a bigger building or find you no longer need your backyard shed to store. Prefab homes 5 stylish modern house kits houseandgardenco.
Theres a prefab for. Bathroom exterior storage poolside shower and large patio to relax and enjoy tropical breezes. I agree with the the other comments on the tv and really on the bathroom all in one pod.
Ideal back yard recreation lounge guest house or even a home office estimated. Small cottage house plans small cottage homes cottage floor plans small cottages small house plans guest cottage plans backyard cottage tiny homes small cottage interiors. Think of granny pods as guest houses with lots of high tech medical extras.
Get started turning your backyard shed into a guest house by prioritizing your guests needs and what you can afford to do. All shipping container homesit includes a bathroom shower. Whether its a studio a guest house or even just a backyard chill.
Converting your shed into a guest house for the holidays posted on february 25 2016 at 550 pm. This is the most cost effective housing option while the main house is being built and will be used as guest house. The cottage can be compared to a bungalow from the outside and a nice hotel suite on the inside with room for a bed living room space kitchenette and bathroom.
Design your own in our 3d design studio to craft the ultimate upgrade for your backyard. We gathered 40 of the most amazing prefab tiny houses. Summit series models are designed to be the perfect guest house adu accessory dwelling unit garage or dream backyard studio.
Now easier than ever with turnkey bathroom and kitchenette interior options. See and discover other items. Living small doesnt have to mean living in a boring box.
Kit cabin prefab cabin log cabin kits to build home kits to build to live in small house kits guest house kit. We partnered with san francisco based prefab firm modern cabana to create a pared down modular project that provides a bit more square footage without the need for an over the top home addition. What is a granny pod.
Built the main house in 1998 and a guest suite in 2003 cuomo construction was enlisted again to create a fabulous backyard poolguest house. If you crave more space in your house but an.
Backyard Mother In Law Cottage Suite Prefab Beach House Mo

Modern She Shed Designs And Ideas Dwell

China Modular Design Prefab Guest Houses For Your Backyard China

Cabinlife Timber Cabins Creative Spaces For Living
![]()
Modern Prefab Sheds You Can Buy Right Now For Your Backyard Curbed
Prefab Guest House With Bathroom Previous Next Houses Pre Built

Cedar House Kits Backyard Guest Houses Prefab Guest Cottages

8 By 8 Tiny Prefabricated Guest House Cabin Small Shelter

Holiday Prefab Backyard Guest House Resort Hotel With Ce Certificate

Prefab Shed Kit Archives Westcoast Outbuildings
Prefab Guest House With Bathroom Best Of Home Back Yard Pre Built
This Small Backyard Guest House Is Big On Ideas For Compact Living

200 600 Sq Ft Pre Fab Guest House Cottages Delivered And Installed
Bathroom Prefab Guest House California Plus Back Yard Pre Built

What Are Granny Pods A Way To Keep Aging Parents Close To Home

An Attractive Modern Modular Guest House For Your Garden
![]()
Modern Prefab Sheds You Can Buy Right Now For Your Backyard Curbed
Prefab Guest Houses Modular Home Additions Studio Shed Intended

/spruceshedarchi-5bb00d22c9e77c00266dca58.jpg)
No comments:
Post a Comment